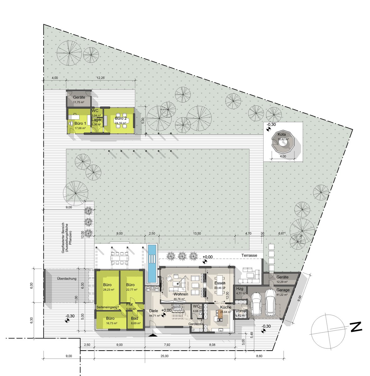
Einfamilienhaus mit Gewerbeanteil in Stromberg
Entwurfskonzept für einen Einfamilienhaus-Neubau mit Gewerbeanteil / Einliegerwohnung in Stromberg.
Wohnfläche: 460 m²
Grundstücksgröße: 2.370 m²
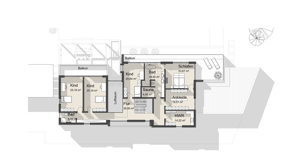
Entwurfskonzept für einen Einfamilienhaus-Neubau mit Gewerbeanteil / Einliegerwohnung in Stromberg.
Wohnfläche: 460 m²
Grundstücksgröße: 2.370 m²